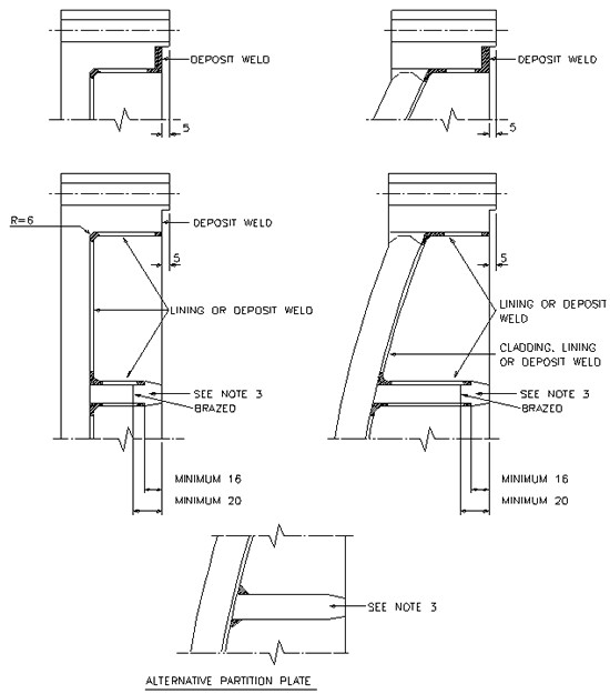
Design standard of typical details for lined floating head. Use this standard for study purposes only.
General Notes:
- Lining thickness and material as specified on exchanger drawing
- For all stainless steel welds see drawing BN-DS-A7, sheet 1 & 2
- To be same material as lining, unless specified on exchanger drawing
The next figure shows a typical design:
